

Wohnumfeldgestaltung
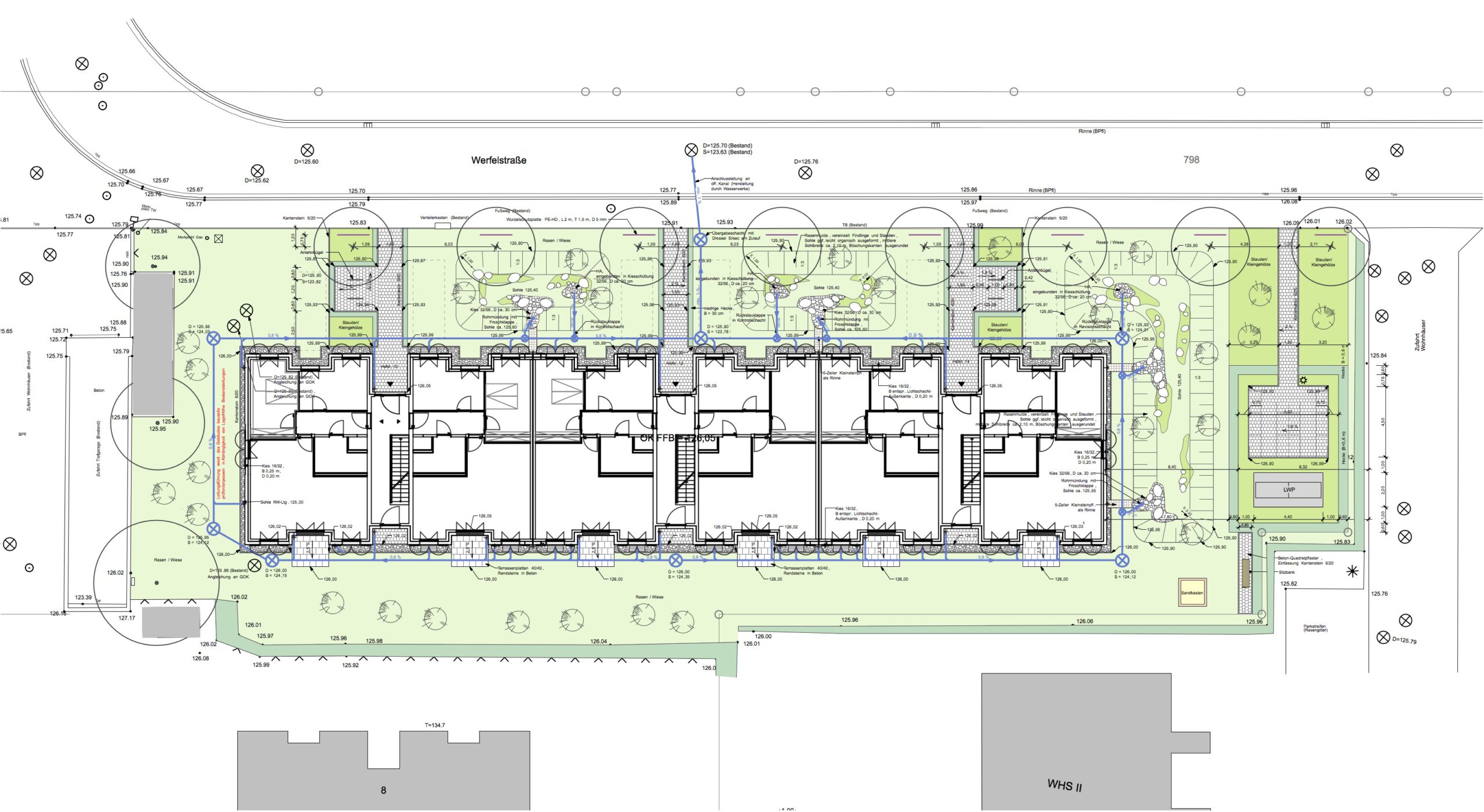
Für den Neubau des Wohnhauses in der Werfelstraße in Leipzig sollten die Außenanlagen gestaltet werden. Zentrales Element der Freianlagenplanung war die im Sinne ders Schwannstadt-Prinzips vorzusehende oberflächennahe Regenwasserrückhaltung und -versickerung. Eine vollständige Versickerung ist aufgrund der anstehenden Bodenverhältnisse nicht möglich. Trotz der beengten Platzverhältnisse kann das Ziel einer maximalen Regenwasserrückhaltung durch die Anlage von drei begrünten Retentionsmulden umgesetzt werden. Der rechnerische Nachweis hierfür wurde mit dem zu erstellenden Überflutungsnacheis erbracht.
Projektinformationen
