

Wohnumfeldgestaltung
Am Südufer des Zwenkauer See hat sich ein neues Stadtquartier am größten See des Leipziger Neuseenlands entwickelt – das Kap Zwenkau, in besonderer Ort in Hanglage zum See. Unter der Leitidee von „wohnen. arbeiten. genießen.“ entstand und entsteht hier seit 2011 individuelle Architektur in einem stimmigen Gesamtbild.
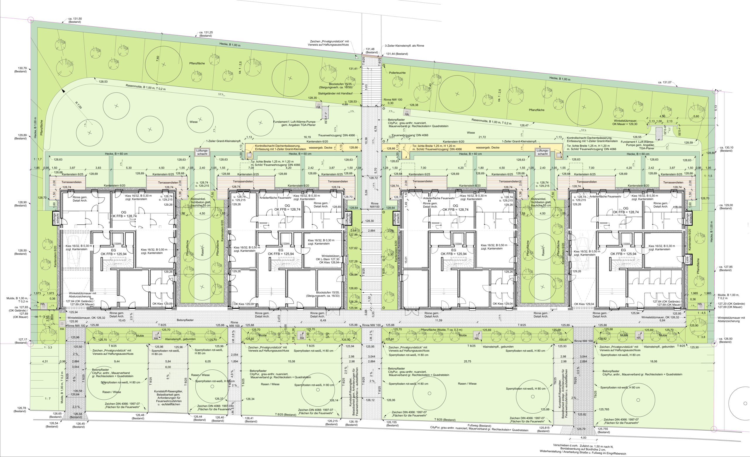
In den modernen Mehrfamilienhäuser entstehen 30 moderne Wohneinheiten. Nicht nur für optische Entspannung sorgen die mit viel Grün angelegten Außenanlagen sowohl vor als auch hinter den Gebäuden. In Entsprechung zur Architektur dominieren bei der Gestaltung klare Linien und Formen. Ca. 350 lfm geschnittene Hecken definieren die Grenzen des Gesamtareals sowie der priavten Nutzungsbereiche, die etwa 1.300 m² Staudenpflanzungen dagegen steigern mit ihrem Blütenreichtum über weite Teile des Jahres auf besonders ansprechende Weise die Attraktivität des Areals.
Projektinformationen
